都城市山田町山田の事務所の基本情報
- 物件名
- 都城市山田町山田の事務所
- 価格
- 1,000万円
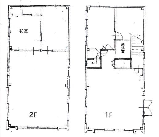
- 建物面積
- 143.00㎡
- 築年月
- 1983年10月(築42年)
- 総戸数
- -
都城市山田町山田の事務所の詳細情報
- 設備条件
-
- 設備(その他)
-
-
-
- 駐車場/月額
- -/-
- 土地権利
- 所有権
- 国土法届出
- 不要
- 用途地域
- 第二種住居
- 戸数
- - / -
- 管理形態
- -
- 管理員の勤務形態
- -
- 管理会社
- -
- 取引態様
- 仲介
- 引渡し
- 相談
都城市山田町山田の事務所で募集中の物件
周辺施設
-
スーパー
Aコープ 山田店
62m(1分)
-
公園
山田運動公園
184m(3分)
-
小学校
山田小学校
415m(6分)
-
中学校
山田中学校
1249m(16分)
近隣の物件
よく見られている物件
都城市山田町山田の事務所
お気軽にお問い合わせください
まるさ住宅株式会社 都城本店
0986-38-4455
10:00~18:00
(休:毎週水曜定休日(3月定休日なし)・年末年始・GW・お盆)





